Baugrundstück ca. 400m² + ca. 432m² Grundstück – Bungalow mit Baugenehmigung 3 Parteienhaus

8 Fotos und Anhänge ansehen
Go Immobilien Ute Rötzer
Rösrather Str. 615, 51107 Köln
Teilen

Flurkarte – IST (Winkelbungalow)

Erweiterung Bungalow mit Bebauung – Grundstück

Querschnitt

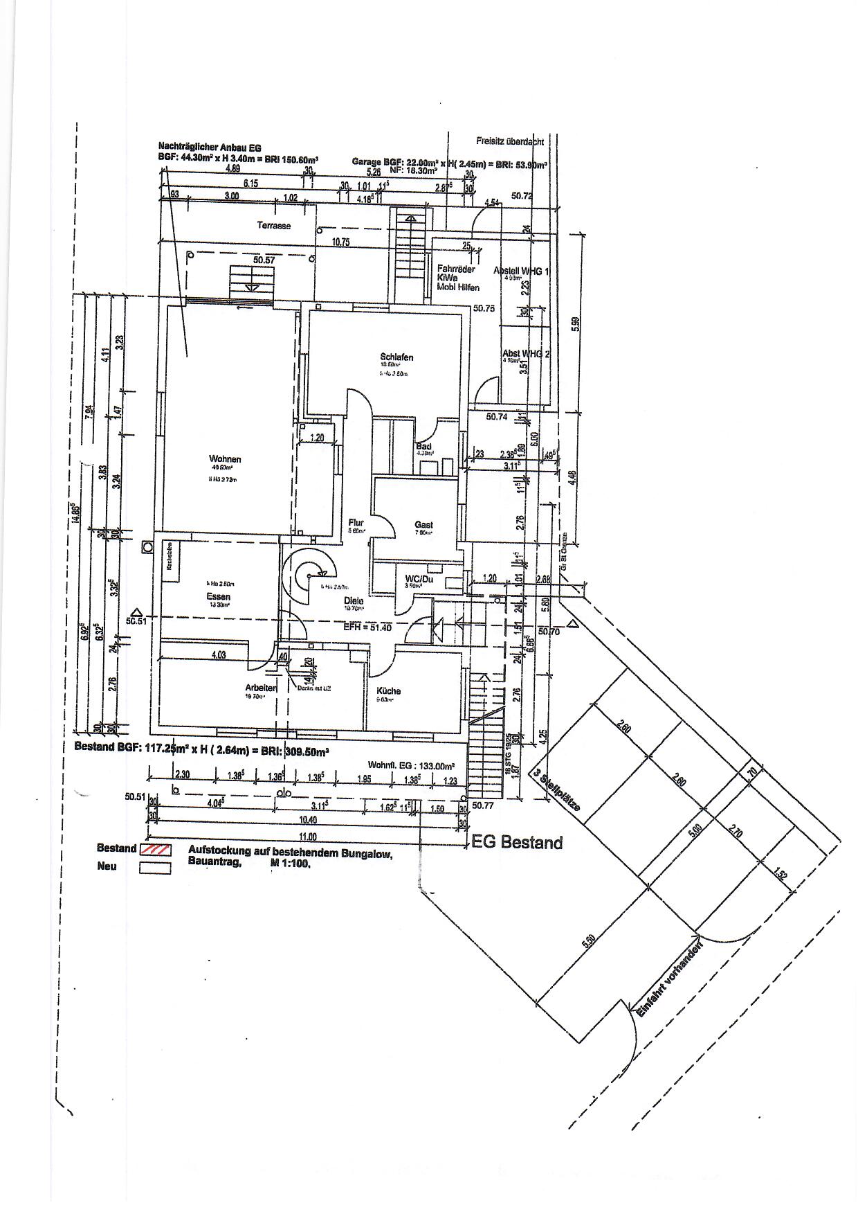
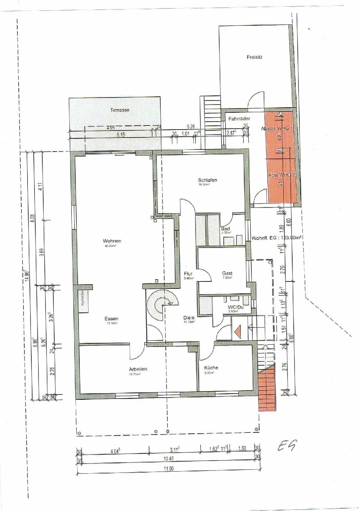
Bestand/ Erdgeschoss

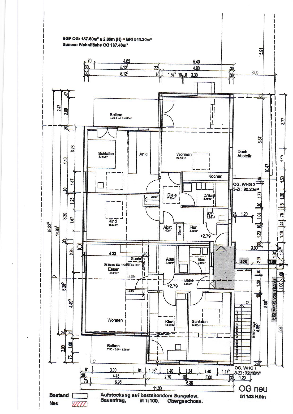
Aufbau zusätzlicher Wohnraum

Garten

Zugang / Garten und Terrassenbereich

Zufahrt

Baugrundstück ca. 400m² + ca. 432m² Grundstück – Bungalow mit Baugenehmigung 3 Parteienhaus

Eckdaten

  • Art Baugrund für Ein- / Zweifamilienhäuser
  • Lage 51143 Köln
  • Kaufpreis 698.000,00
  • Grundstück ca. 832
  • Bebaubar nach Nachbarbebauung
  • Fahrzeit Hauptbahnhof 20 min
  • Fahrzeit nächste Autobahnauffahrt 8 min
  • Fahrzeit nächster Flughafen 10 min
  • Immobilien-ID 922
  • Provision 3,57% inkl. MwSt.

Immobilie

Dieses charmante Anwesen in Köln Porz – Langel bietet Ihnen eine gesamte Grundstücksfläche von 832 m².
Idealerweise haben Sie hier mehrere Möglichkeiten der Nutzung / Bebauung.
Ein genehmigter Bauantrag zur Erweiterung des Winkelbungalow zum 2/3 Parteienhaus liegt vor!
Zusätzlich können Sie auf dem vorderen Grundstücksteil/ Baufeld, – welches eine Größe von ca. 400m² aufweist, eine weitere Immobilie planen.

Lage

Der Winkelbungalow befindet sich in einem ruhigen Stadtteil von Köln Porz – Langel, gelegen in einer Ortslage mit einer angenehmen Wohnlage. Umgeben von gepflegten Gärten und netter Nachbarschaft, bietet die Umgebung eine idyllische Atmosphäre. Einkaufsmöglichkeiten, Schulen und öffentliche Verkehrsmittel sind bequem zu Fuß erreichbar, was die Lage besonders attraktiv für Familien macht.

Köln selbst ist eine lebendige Stadt im Herzen von Nordrhein-Westfalen. Bekannt für ihre beeindruckende Architektur, vielfältige Kulturangebote und lebhafte Einkaufsstraßen, bietet die Stadt eine ideale Mischung aus Tradition und Moderne. Mit zahlreichen Grünflächen und Naherholungsgebieten ist Köln auch für Naturliebhaber ein attraktiver Wohnort.

Die Region um Köln Porz – Langel herum ist geprägt von malerischen Landschaften.
Mit einem gut ausgebauten Netz an Rad- und Wanderwegen können Bewohner die Schönheit der Umgebung zu Fuß oder mit dem Fahrrad erkunden. Die Nähe zum Rhein und den umliegenden Restaurants macht die Region besonders reizvoll für Outdoor-Aktivitäten und Genussmomente.

Sonstiges

Haben wir Ihr Interesse geweckt? Dann freuen wir uns über Ihre Kontaktaufnahme zur Abstimmung eines Besichtigungstermins.

Der persönliche Eindruck wird Sie von diesem Winkelbungalow mit Ausbaupotenzial, Keller, Garten, Garage und zusätzlichem Baufeld von ca. 400m² überzeugen.
In Zeiten ständig steigender Immobilienpreise lohnt sich die Investition in die Zukunft.

Alle Angaben sind ohne Gewähr und basieren ausschließlich auf Informationen, die uns von unserem Auftraggeber übermittelt wurden.
Wir übernehmen keine Gewähr für die Vollständigkeit, Richtigkeit und Aktualität dieser Angaben.

Grundrisse

Wie können wir Ihnen behilflich sein?

Herzlichen Dank für Ihre Anfrage.

Wir werden diese so schnell wie möglich bearbeiten.

Wie können wir Ihnen behilflich sein?
* Pflichtfeld